Zorgappartementen Beverwijk
Modulair wonen
2018, Beverwijk
30 zorgappartementen voor (jong)volwassenen met een lichamelijke beperking, niet aangeboren hersenletsel of lichte verstandelijke beperking.
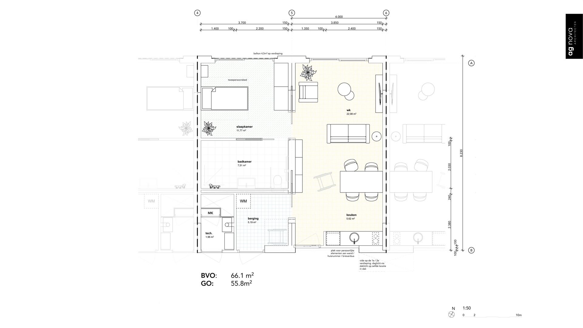
Op de locatie van een oude school in Beverwijk zullen 30 zorgappartementen worden gerealiseerd voor (jong)volwassenen met een zorgbehoefte. Door het specifieke PvE van de opdrachtgever was dit een uitgesproken kans om een modulaire bouwmethodiek toe te passen.
Het uitgangspunt in het ontwerp zijn bouwblokken van vier bij acht meter. Hiermee creëren we wooneenheden (2 x vier bij acht) of dagbestedingsruimtes (4 x vier bij acht). De eenheden worden in de fabriek geprefabriceerd en afgewerkt. Op de bouwplaats worden ze gestapeld tot drie lagen.
