
Ruitersbos
Nieuwbouw van twee woontorens in een zorgzame buurt
Locatie: Breda
Opdrachtgever: Woonzorg Nederland
Jaar: 2024
Omvang: 73 appartementen
Doelgroep: Senioren
Samenwerking: Ouwehand Bouw, BBC Bouwmanagement, Pieters Bouwtechniek, Vollmer & Partners en De Groene Jongens BV
Beelden: Rufus de Vries, Vollmer & Partners, AG NOVA Architecten
Wonen met zorg om de hoek
Ruitersbos is een nieuwbouwproject van 73 zelfstandige seniorenappartementen met een gezamenlijke ontmoetingsruimte, gelegen nabij het Mastbos. Het project is een sloop-nieuwbouwontwikkeling waarin de oude torens uit de jaren ’60 zijn vervangen door twee nieuwe, duurzame torens met zeven woonlagen. Een overdekte corridor, ontmoetingsruimtes, een scootmobielstalling, en extra parkeergelegenheid dragen bij aan het wooncomfort.
Samen met de bestaande bouw vormen de twee torens wooncomplex Ruitersbos. De woningen in de torens zijn ontworpen voor senioren, waarbij het doel is dat men langer op zichzelf kan blijven wonen. Zelfstandig, maar met zorg om de hoek!


Ontwerp terrein
Het omringende terrein is met zorg ontworpen door Vollmer+partners. De doelgroep bestaat mede uit mensen die dementerend en/of somatisch zijn. De zintuigelijke beleving speelt daarbij een belangrijke rol.
Verhogen van de biodiversiteit draagt ook bij aan de belevingswaarde. Toegankelijkheid is belangrijk: paden zijn uitgevoerd in gebakken klinkers. In het ontwerp is het parkeren zorgvuldig ingepast met hagen, bomen en plantvakken.
Het terrein wordt naar het zuiden toe opener en natuurlijker. Daar is een ecologisch waardevolle tuin gerealiseerd met wadi’s, bloemenweides en een rijk assortiment aanbomen en beplantingen.
Een overdekte corridor, ontmoetingsruimtes, een scootmobielstalling, en extra parkeergelegenheid dragen bij aan het wooncomfort.


Doelgroepgericht ontwerp
De nieuwe woongebouwen zijn in twee fases gebouwd, zodat bewoners van de bestaande gebouwen geleidelijk konden verhuizen naar de nieuwbouw. In het ontwerp is veel rekening gehouden met de doelgroep. Dit is onder andere terug te vinden in de toepassing van twee liften, ruime gangen en een gemeenschappelijke ontmoetingsruimte. De droge verbinding in de vorm van de corridor verbindt de bewoners letterlijk en figuurlijk met elkaar.



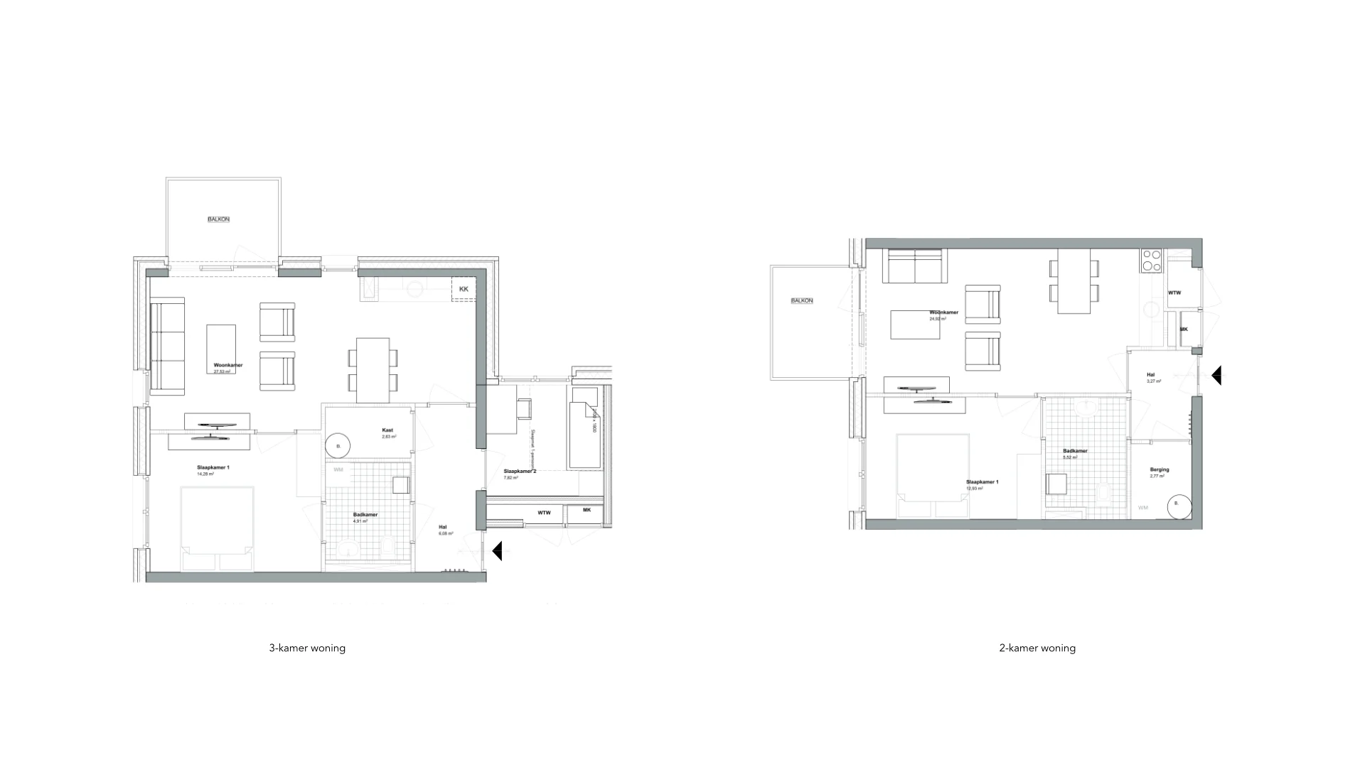
In de woning is rekening gehouden met extra manoeuvreerruimte voor een rolstoel of rollator. Zo zijn de badkamers extra ruim en direct toegankelijk via de hoofdslaapkamer.
Hi, wij zijn AG NOVA Architecten. Welkom op onze site.
