
Woonzorgproject Borgstede in Barendrecht
Een toekomstbestendig woonzorgcomplex waar wonen en zorg samenkomen
Jaar: Start ontwerp 2019
Locatie: Barendrecht
Opdrachtgever: Woonzorg Nederland voor zorgorganisatie Laurens
Samenwerking: Vollmer en partners Stedenbouw en Landschap, Burobas interieurontwerpers, Aannemer Dura Vermeer
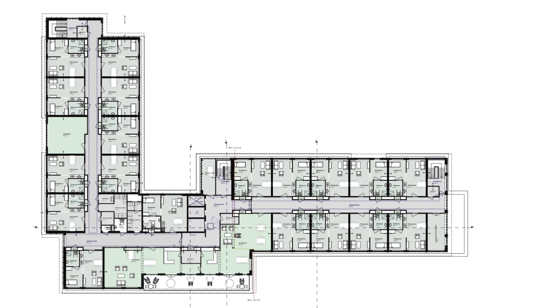
Omvang: 99 woningen en 10 buurtkamers voor intramurale zorg
Beelden: AG NOVA Architecten, Dura Vermeer, Woonzorg Nederland, Burobas

Borgstede markeert een transformatie in de visie op zorggebouwen. Geïnspireerd door het idee dat wonen met zorg zo normaal mogelijk moet aanvoelen, is dit nieuwe woonzorgcentrum ontworpen als een levendige, huiselijke omgeving. Hier wonen bewoners niet alleen, maar leven ze samen, in een sfeer die dichtbij de beleving van een vertrouwde woonwijk ligt.
Het vernieuwde Borgstede biedt plaats aan 99 ruime appartementen en 10 buurtkamers, gegroepeerd in kleinschalige ‘buurtjes’. Dit ontwerp benadrukt sociale interactie en biedt tegelijkertijd privacy, met een zorgomgeving die op de achtergrond blijft. In samenwerking met Woonzorg Nederland en zorgorganisatie Laurens is een gebouw gerealiseerd dat perfect aansluit bij de behoeften van ouderen met een intensieve zorgvraag.
Gefaseerde realisatie: wonen tijdens de transformatie
De bouw van Borgstede is gefaseerd uitgevoerd om de huidige bewoners en medewerkers zo min mogelijk te belasten. Het bestaande complex is stap voor stap vervangen, waardoor bewoners konden blijven wonen in een vertrouwde omgeving. Dit vergt niet alleen een doordachte bouwplanning, maar ook aandacht voor details zoals geluidsarme funderingstechnieken en zorgvuldig afgestemde woonvoorzieningen. Het zorggebouw bestond oorspronkelijk uit 122 zorgkamers voor intramurale zorg, verdeeld over drie bouwlagen. Door sloop en nieuwbouw maakt Borgstede plaats voor een zorgcomplex met 99 intramurale zorgkamers en 10 buurtkamers.


Samen leven, in een vertrouwde omgeving
Het concept is gebaseerd op een verschuiving van ‘zorgen voor’ naar ‘samen leven’. Bewoners worden gestimuleerd om een eigen thuis te creëren, met behulp van goed ontworpen woonruimtes, knusse buurtkamers en faciliteiten zoals een beweegkamer, een theater en een snoezelruimte. De ruime en lichte gangen, thematische inrichting per verdieping en de toevoeging van een beleeftuin versterken het gevoel van comfort en verbondenheid.
Borgstede wordt een integraal onderdeel van de sociale hub in de wijk in combinatie met het dienstencentrum.


Vrijheid binnen veilige grenzen
Met innovatieve technologieën zoals dwaaldetectie biedt Borgstede bewoners maximale bewegingsvrijheid binnen een veilige omgeving. Dit is essentieel voor bewoners die psychogeriatrische zorg nodig hebben. Deze aanpak sluit perfect aan bij de visie van AG NOVA Architecten op zorggebouwen: een balans vinden tussen vrijheid, veiligheid en huiselijkheid. De gangen zijn meer dan alleen verkeersruimte. Nisjes geven ruimte voor een gesprekje, daglicht helpt bij de oriëntering en kleuraccenten bieden herkenning.
Betekenisvolle verbinding met de wijk
Het nieuwe Borgstede is niet alleen een plek om te wonen, maar ook een centrum voor de wijk. Samen met het aangrenzende dienstencentrum en zelfstandige seniorenwoningen speelt het complex een belangrijke rol in het versterken van de sociale cohesie in Barendrecht. Het resultaat is een toekomstbestendig woonzorgcomplex waar bewoners zich echt thuis voelen.

De gangen zijn meer dan alleen verkeersruimte. Nisjes geven ruimte voor een gesprekje, daglicht helpt bij de oriëntering en kleuraccenten bieden herkenning.
Hi, wij zijn AG NOVA Architecten te Amersfoort. Welkom op onze site.
AG NOVA Architecten, architect in Amersfoort.
AG NOVA Architecten, architect in Utrecht.
Architect voor zorg
Architect voor wonen
Architect voor verduurzamen
Architect voor herbestemmen
Architect voor publieke gebouwen
Architect voor herbestemmen en transformeren van kerken
Architect voor sportgebouwen
