
Het Kamerlingh Hof
Wonen in Verbinding
Jaar: 2024
Locatie: Nieuwerkerk a/d IJssel
Opdrachtgever: Woonzorg Nederland
Omvang: 44 Appartementen voor de zorg, 3,650 m2 BVO
Beelden: AG NOVA Architecten
Omgeving
Het project ligt middenin de wijk Dorrestein in Nieuwerkerk aan den IJssel. De locatie, voorheen een oude basisschool, wordt aan drie zijden omgeven door woningen en aan één zijde door de Thorbeckeschool. Op deze plek ontwerpen wij een appartementengebouw voor senioren, dat functioneert als een hofje waar ontmoeting centraal staat.


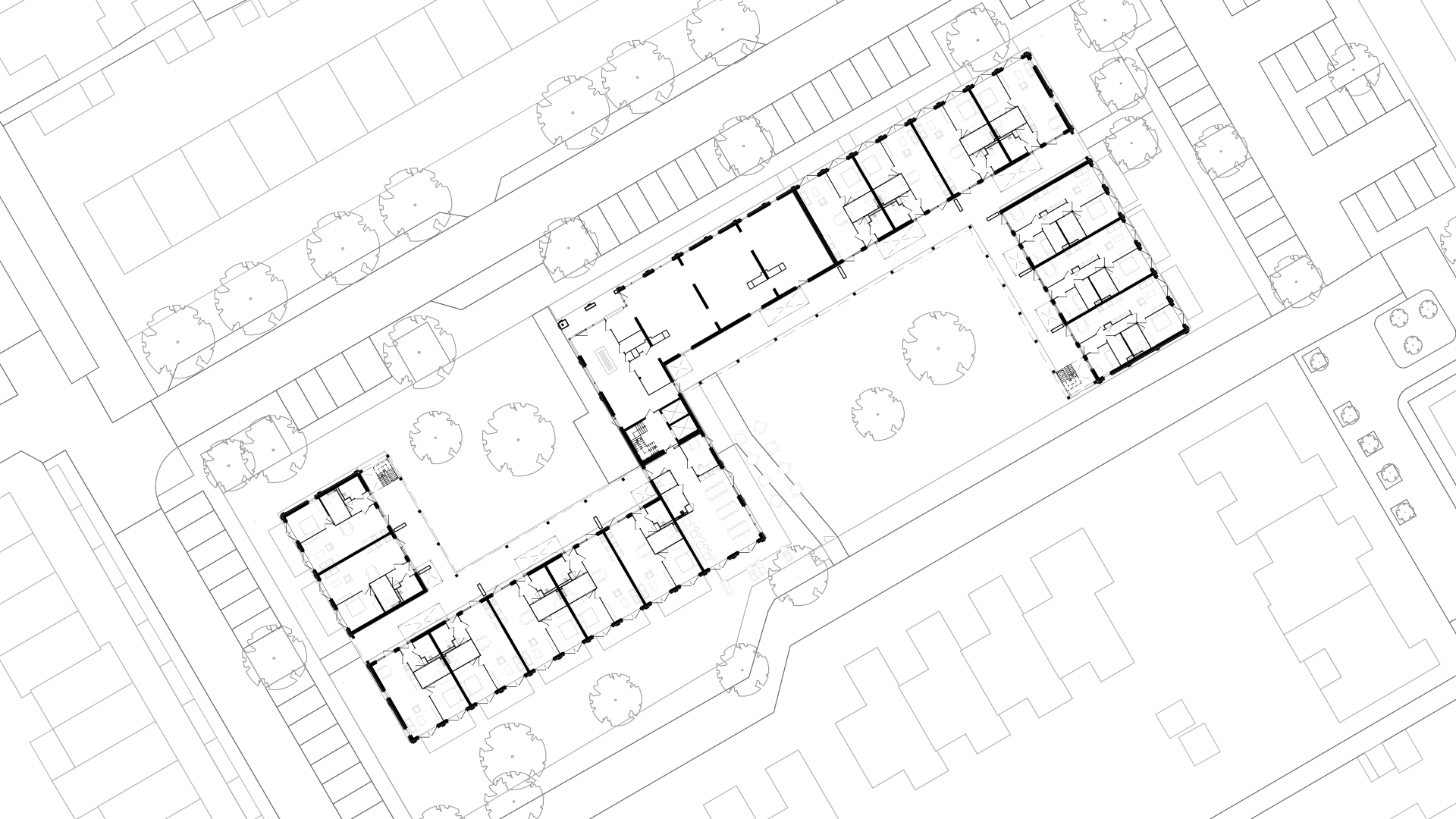
De stedenbouwkundige opzet van het gebouw is ontwikkeld door de gemeente Zuidplas in samenwerking met de omwonenden. Hierdoor is er een breed gedragen plan ontstaan dat binnen de contouren van de bestaande wijk past. Door te kiezen voor een S-vormige opzet van het gebouw, zijn er geen duidelijke voor- of achterkanten. De twee binnentuinen grenzen hierdoor aan beide kanten aan de openbare ruimte en zijn ook toegankelijk voor de omwonenden.
De 44 nieuwbouwappartementen vouwen zich om de twee groene binnentuinen heen. Via een extra brede galerij worden de woningen aan de zijde van de binnentuin ontsloten. Aan deze galerij liggen ook de buitenruimtes, wat ontmoeting faciliteert. Door middel van vides komt er meer daglicht binnen.


Het ontwerp van het gebouw sluit aan bij de buurt door het gebruik van passende materialen en vormen. Lichte kleuren zorgen voor een uitnodigende uitstraling, en de combinatie van baksteen, beton en planken is op meerdere plekken in de wijk terug te vinden. De architectuur is modern en harmonieert met de omgeving. Het gebouw heeft stevige kaders met diepe negge en lichte plintaccenten. Er wordt gebruik gemaakt van zand/gele baksteen in wildverband metselwerk, speciaal tegelverband metselwerk, betonnen waterslagen en een betonnen galerijframe. De entree is transparant en uitnodigend, en de binnentuinen kunnen worden afgesloten om een beschermde leef- en woonomgeving te creëren.
“Een appartementengebouw waar ontmoeting centraal staat, ontworpen als een hofje voor senioren.”


Daarnaast komen er in de binnentuinen verschillende faciliteiten voor de bewoners, zoals een zonnig terras aan de collectieve woonkamer, een bloemen- en plantenweide, looppaden en een wadi. Op diverse plekken lopen spandraden langs de galerij zodat het groen vanuit de binnentuinen naar boven kan groeien.
Met dit project streven AG NOVA en Woonzorg Nederland ernaar niet alleen nieuwe woonruimte voor senioren te creëren, maar ook een positieve bijdrage te leveren aan de leefbaarheid en duurzaamheid van de wijk Dorrestein.





Met twee binnentuinen die toegankelijk zijn voor omwonenden, wordt verbinding binnen de wijk bevorderd.

Hi, wij zijn AG NOVA Architecten te Amersfoort. Welkom op onze site.
AG NOVA Architecten, architect in Amersfoort.
AG NOVA Architecten, architect in Utrecht.
Architect voor zorg
Architect voor wonen
Architect voor verduurzamen
Architect voor herbestemmen
Architect voor publieke gebouwen
Architect voor herbestemmen en transformeren van kerken
Architect voor sportgebouwen
