
Sportboulevard De Engh
Nieuwbouw en verbouw van sportcomplex De Engh in Soest
Locatie: Soest
Opdrachtgever: Gemeente Soest
Jaar: 2024
Omvang: 2300 m2 BVO nieuwbouw, 1800 m2 BVO verbouw
Beelden: Rufus de Vries, Photos by Bo, AG NOVA Architecten
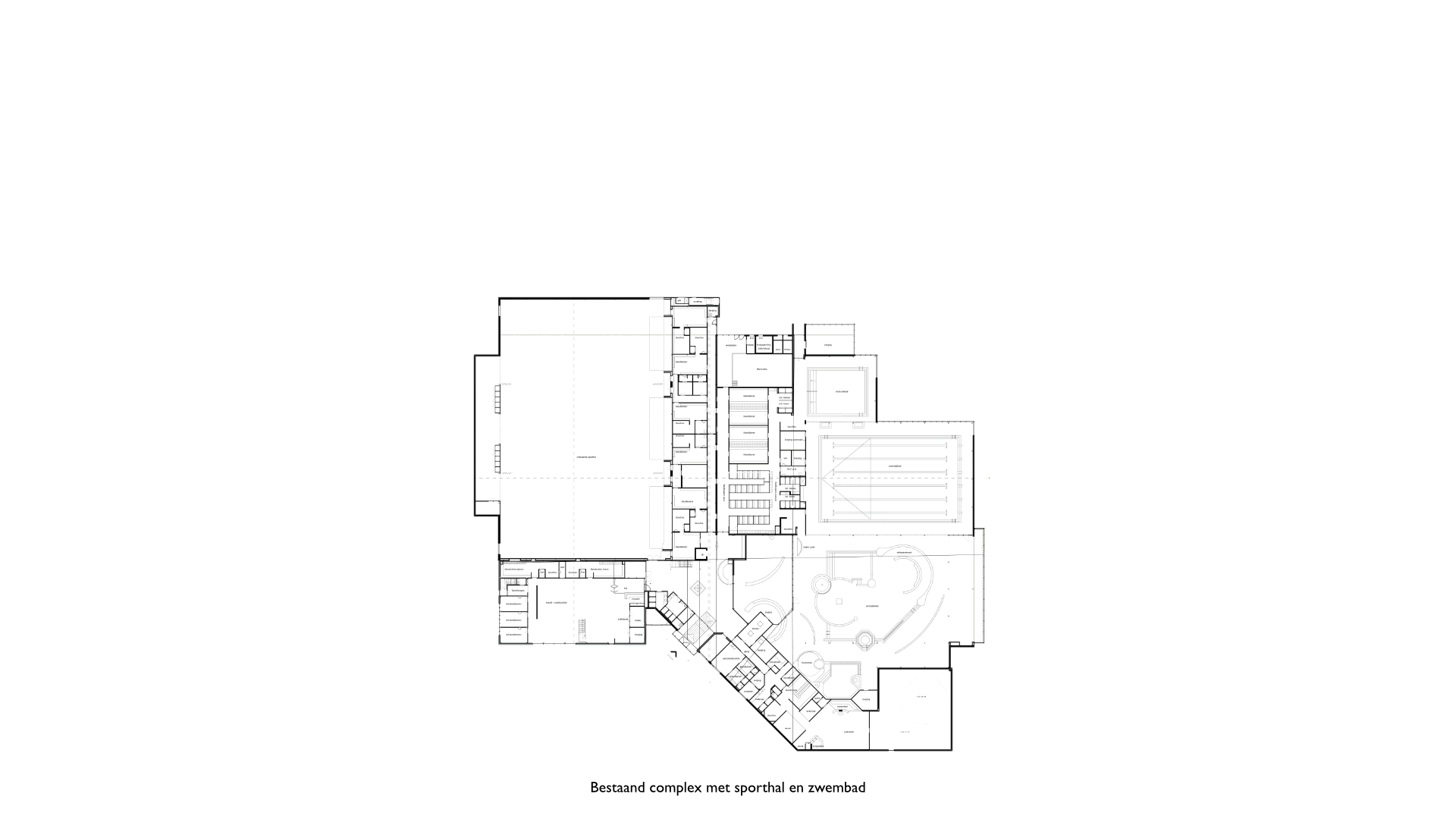
Oude situatie
Voordat we aan de slag gingen met het sportcomplex bevatte het al een zwembad, sporthal en fitnessclub. Functionaliteit typeerde het gebouw en haar omgeving: de buitenruimte was versteend, gevels waren vooral praktisch gematerialiseerd en er was weinig overmaat in de binnenruimtes. Belangrijke aandachtspunten waren de wat anonieme entree, interne routing en de verrommeling van de buitenruimte door onder andere de graffiti op de gevels.




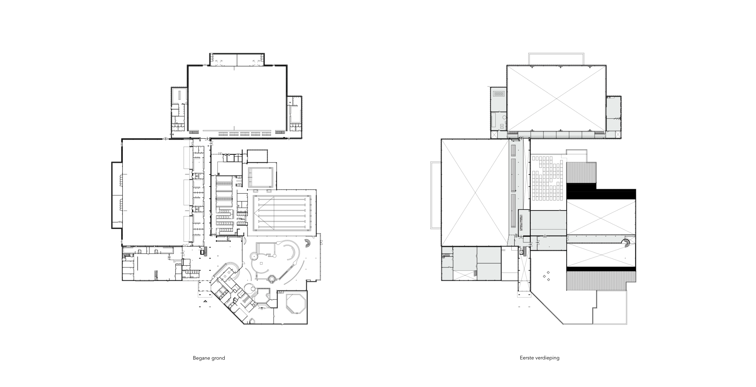
Gebouwopzet
De transformatie van Sportboulevard De Engh hebben we in twee fases uitgevoerd. De eerste fase omvatte de toevoeging van een tweede volwaardige sporthal, inclusief kleedkamers, tribune en een verenigingsruimte. Deze uitbreiding is als het ware achter het bestaande complex gebouwd.
Fase twee was erop gericht de interne structuur te verbeteren en tegelijk de nieuwe sporthal op een logische wijze te koppelen aan het bestaande complex. Om ook de entree van het gebouw te verbeteren kozen we voor 1 groots gebaar: de toevoeging van een 7 meter hoge corridor. Deze centrale as is als snede door het bestaande gebouw getrokken. Door de toepassing van grote houten spanten en glas is het een kenmerkend element geworden dat daglicht tot diep in het gebouw brengt.
Naast deze centrale corridor hebben we ook de voorzieningen voor de bestaande sporthal, zoals douche- en kleedruimtes, opnieuw opgebouwd. Ook is de horecaruimte vergroot en als een uitnodigend verlengstuk van het entreeplein vormgegeven.
Precisiewerk
De toevoeging van de houten constructie was een waar kunststukje. Zo moesten dwars door het bestaande gebouw heen funderingspalen geplaatst worden terwijl enkele meters verderop het zwembad gewoon in bedrijf bleef. Ook het inhijsen vroeg de nodige voorbereidingen en afstemming in logistieke planning.


Het ontwerp legt de nadruk op een eigentijdse uitstraling, met veel lichtinval en een gebruiksvriendelijke indeling, zodat sporters en bezoekers zich er direct thuis voelen.

Bij binnenkomst valt de hoge lichte ruimte meteen op. Vanaf dit entreeplein zijn alle functies zichtbaar met doorkijkjes naar het zwembad, beide sporthallen en de sportschool. De routing door het gebouw is benadrukt door looplijnen, waarbij de kleuren terugkomen in interieuronderdelen zoals bijvoorbeeld de toegangsdeuren. Bezoekers kunnen zich op een intuïtieve manier door het gebouw bewegen, of ze nou komen sporten, aanmoedigen of ontspannen.
Verderop in de corridor zijn de toegangen tot de kleedkamers van de bestaande sporthal te vinden. In het verlengde van de corridor toont een groot venster een mooi doorzicht naar de nieuwe sporthal. Het kleurgebruik is naturel, waarbij de houttinten sfeer en warmte geven. Goede akoestiek was een belangrijk gegeven, vandaar dat zowel de wandoppervlaktes als het plafond bijdragen aan een fijne akoestische beleving van de ruimte.


De nieuwe sporthal sluit qua kleurenspectrum aan bij de overige ingrepen. Ook hier geeft de houten lambrisering een warme sfeer, terwijl de overige elementen in een rustige grijstint uitgevoerd zijn. Zowel beneden als boven is plek voor supporters. Op beide niveaus is een verbinding gemaakt met de bestaande sporthal zodat ook bij grotere evenementen multifunctioneel gebruik gegarandeerd is.

Circulair en Klimaatadaptief
Volledig in aansluiting bij de circulaire ambities van de Gemeente Soest hebben we vanaf begin af aan ontworpen vanuit een duurzame grondhouding. Dit begon al met de keuze om zoveel mogelijk van het bestaande gebouw te behouden en alleen waar nodig in te grijpen door nieuwe toevoegingen. Het slimme energiesysteem maakt niet alleen de nieuwe sporthal energieneutraal, maar verduurzaamd ook de bestaande. Door de toepassing van Urban Mining Concrete hebben we een CO2-reductie weten te behalen van minstens 60% in vergelijking met traditioneel beton, wat gelijkstaat aan de uitstoot van meer dan 600.000 autokilometers. Daarnaast zijn veel bio-based materialen toegepast, zoals houten lamellen en schanskorven voor de gevelbekleding en natuurlijk de houten spanten.
De overgang van gevel naar omliggend terrein is in nauwe samenwerking met Vollmer & Partners ontworpen. Het klimaatadaptieve en locatie-specifieke landschapsontwerp loopt over in de gevel, waar het raster van de schanskorven volgroeid raakt met diverse klimplanten. Dit biedt niet alleen een aantrekkelijk aanzicht en nestplekjes voor onder andere vogels, het is ook direct een oplossing om te voorkomen dat de gevel met graffiti ontsierd worden.

Hi, wij zijn AG NOVA Architecten. Welkom op onze site.
