
Sporthal De Klabbe
Nieuwbouw sportcomplex De Klabbe
Locatie: Emmer-Compascuum
Opdrachtgever: Gemeente Emmen
Samenwerking: Jansman Bouw, Van Rossum, Enervisie, Alcedo
Jaar: 2023
Omvang: 3100 m2 BVO
Vertrekpunt
Het vertrekpunt voor deze ontwikkeling in het centrum van Emmer-Compascuum was een braakliggend terrein met twee gezichten: Eentje gericht naar de vaart en de ander gericht naar de woonwijk. Beide gezichten vragen een eigen benadering, wat ingevuld is met enerzijds woonprogramma en anderzijds de sporthal. In samenwerking met Jansman bouw hebben we de sporthal ontwikkeld tot een prachtig nieuw sportcentrum dat als vervanging dient voor de oude ‘Klabbe’ op een steenworp afstand.


Gebouwopzet
Een ontwikkeling met twee gezichten dus, waarbij de nieuwe sporthal niet een achtergelegen gebouw is, maar een gebouw met een duidelijke en uitnodigende voorkant. Door compact te bouwen én door het creëren van een ruime entreezone op eigen terrein ontstaat een uitnodigend gebaar. De afgeronde hoek draagt hier ook aan bij, de doorgaande route langs de sporthal richting de vaart wordt hierdoor begeleid. Door het sportvolume in het hart te leggen hebben we de randen lager weten te houden, waardoor een aangename aansluiting gerealiseerd is bij de omliggende bebouwing.
Het nieuwe complex profileert zich binnen de gemeenschap. Je moet je er thuis voelen en met plezier naar toe gaan. Je gaat er heen om te sporten, sport te kijken of beide. Je gaat er ook heen om mensen te ontmoeten, een kopje koffie te drinken, een vergadering, en nog veel meer…
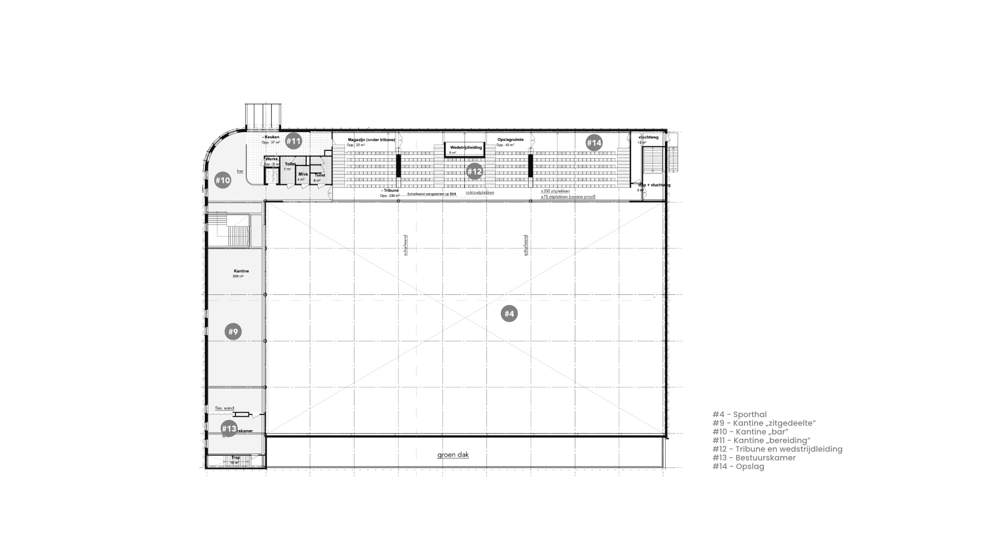
Programma
De ruime sporthal, uiteraard opgezet volgens de normen van NOC*NSF, is op te delen in drie gelijke zaaldelen. Elk zaaldeel is bereikbaar via twee kleedkamers met eigen doucheruimte. Op de eerste verdieping zijn de ruimtes te vinden voor de supporters, zoals de kantine en de tribune. Toegankelijk was een belangrijk aandachtspunt in deze opgave, we hebben het ontwerp constant getoetst aan de uitgangspunten van de Integrale Toegankelijkheid standaard (ITS).

Het gebouw is uitermate duurzaam, met integraal een GPR score van 9.3 en ENG op gebouw gebonden energieverbruik.


Duurzaamheid
Door al vanaf de inschrijving de focus te leggen op duurzaam en circulair bouwen hebben we de ambitie om weten te zetten in realiteit. Dit is onder andere terug te zien in de houten draagconstructie van het dak, met liggers van ruim 28 lang. Plafondafwerkingen zijn circulair hergebruikt: het lattenplafond in de gang is afkomstig van houten balken die zijn geoogst bij een sloopproject en vervolgens geschaafd en bewerkt tot plafonds.




De gevelbekleding bestaat uit een robuuste plint van schanskorf gevuld met gerecycled puin. Daarboven is gekozen voor een afwerking van bamboeplanken, afgewisseld met bamboe balkjes. Bamboe heeft een hoge CO2 opslag, is onderhoudsvrij, vandalismebestendig en heeft een zeer lange levensduur.
De luifel draagt de naam van het sportcomplex, welke ook ‘s avonds goed zichtbaar is. De luifel, en daarmee de entree, is gevat in een uitstekend en herkenbaar kader van bamboe.


Door middel van een lichtgroene accentkleur weet de bezoeker intuïtief zijn of haar weg te vinden.


Interieur
De kleedkamers zijn ruim opgezet, waarbij het douchegedeelte als blok in de ruimte gezet is. Dit voorkomt ongewenste inkijk vanuit de gemeenschappelijke gangen. Ook in deze kleedruimtes is de accentkleur doorgezet in onder andere de gietvloer en het tegelwerk, dat als een spetters van de douchevloer omhoog spat.
De tribune biedt optimaal zicht op de sportvloer, onder andere door de toepassing van een volledig glazen balustrade. Het kleurenpalet is ook hier doorgezet, waarbij de trappen de kenmerkende groene tint hebben gekregen als markeren van de verkeerszone. Het contrast met de overige vloeren maakt de trappen bovendien veilig in gebruik voor bijvoorbeeld mensen met een visuele beperking.

De nieuwe Klabbe staat voor gemeenschapszin, het dorp kan hier de komende decennia bouwen aan nieuwe herinneringen.


Hi, wij zijn AG NOVA Architecten. Welkom op onze site.
