
Suncourt
Nieuwe energie voor een historische plek, de transformatie van de Zonnehof in Amersfoort
Nieuwe energie voor een historische plek, de transformatie van de Zonnehof in Amersfoort
Jaar: 2024
Locatie: Amersfoort
Opdrachtgever: Heilijgers
Landschap en stedenbouw: Imoss Amersfoort
Omvang: 47 ruime twee of drie kamer appartementen voor senioren zelfstandige met een zorgbehoefte
Beelden: AG NOVA Architecten, Imoss
Waar de stad Amersfoort ademt door haar historische pleinen en cultuurhistorische lagen, krijgt de Zonnehof een nieuw hoofdstuk. Suncourt is een architectonische herinterpretatie van deze betekenisvolle plek. Wat ooit een meer gesloten, utilitaire zone was, wordt nu een open, groene verblijfsplek voor wonen, werken en ontmoeten.
Een plek waar stadsgeschiedenis, hedendaagse architectuur en toekomstgericht denken samenkomen.


Historische gelaagdheid als vertrekpunt
De gebouwen rondom de Zonnehof vertellen een gelaagd verhaal: van het voormalige LEVOB-gebouw en GGD-gebouw tot aan het Boekhuis. Deze structuren worden niet zomaar vervangen, maar zorgvuldig meegewogen in het ontwerp. Sommige volumes blijven behouden of worden geherinterpreteerd in massa en materialisatie, zodat de identiteit van de plek overeind blijft.
Suncourt voegt zich in het weefsel van de stad, maar durft ook eigentijdse contrasten toe te voegen. Zo ontstaat een spanningsvolle maar harmonieuze dialoog tussen oud en nieuw.


Stedelijke verbindingen
Suncourt ligt op het kruispunt van stedelijke assen: de Utrechtseweg, Arnhemseweg, de Stadsring en het Varkensmarktgebied. De positionering van het project speelt daarop in, met een tweezijdige oriëntatie en verschillende entrees via de nieuwe plint, de ‘pagode’ of via het park. De plinten aan het park zijn ontworpen om de levendigheid van de stad het gebouw binnen te halen.
Hier ontstaat geen achterzijde, maar een gebouw dat meedraait met de stad.
Groen als structuurdrager
De herinrichting van de buitenruimte speelt een sleutelrol. Een groen parklandschap, met bloeiende (regen)tuinen, verplaatsbare boombakken en vaste planten, versterkt zowel verblijfskwaliteit als klimaatadaptatie. De cortenstalen lijnafwatering, lage beplanting en zachte overgangen zorgen voor een uitnodigend en dynamisch straatbeeld.
Hier wordt verharding omgezet in ontmoeting.
Het ontwerp kiest voor biodiversiteit, flexibiliteit en het creëren van informele plekken voor rust, spelen, wachten en verblijven. Zo sluit de buitenruimte aan op het grotere stedelijke groen en biedt tegelijkertijd intimiteit voor bewoners.




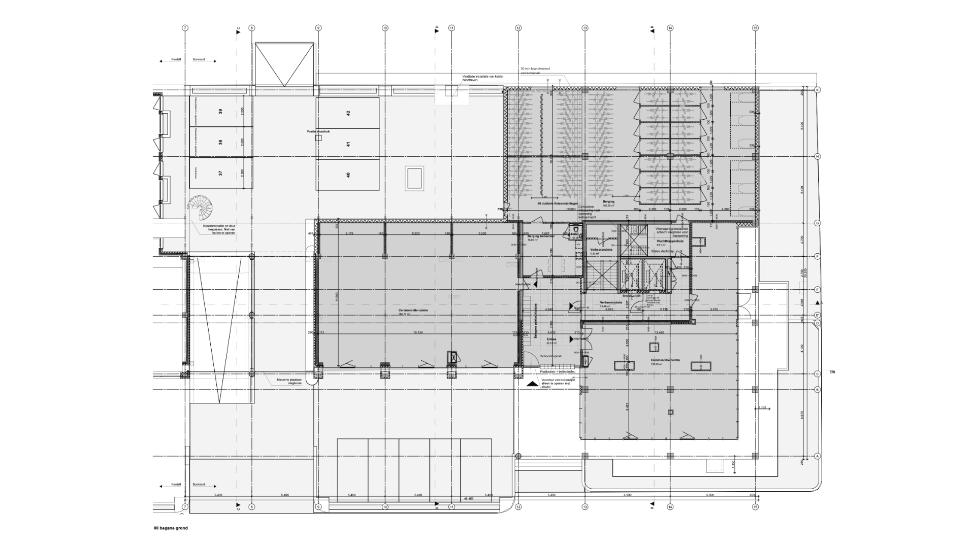
Nieuwe identiteit voor collectieve architectuur
Suncourt biedt een mix aan woonfuncties, commerciële ruimtes en voorzieningen in een heldere, gelaagde opbouw. De volumes zijn zorgvuldig afgestemd op de schaal van de omliggende gebouwen, met terugliggende dakverdiepingen en verfijnde gevelritmiek.
De toren als markant baken is ontworpen met ooghoogtebeleving en stedenbouwkundige bescheidenheid: zichtbaar, maar niet dominant.


Hi, wij zijn AG NOVA Architecten te Amersfoort. Welkom op onze site.
AG NOVA Architecten, architect in Amersfoort.
AG NOVA Architecten, architect in Utrecht.
Architect voor zorg
Architect voor wonen
Architect voor verduurzamen
Architect voor herbestemmen
Architect voor publieke gebouwen
Architect voor herbestemmen en transformeren van kerken
Architect voor sportgebouwen
